

◆产品介绍
该产品通过引进德国和韩国最新技术,采用带填料树脂材料,真空浇注工艺,线圈硬度高,阻燃能力好,耐热性和短时过载能力强。产品具有节能、体积小、重量轻、防潮抗冲击、阻燃、局放小、过载能力强、自动温控等优点。广泛应用于输变电系统、宾馆饭店、高层建筑、商业中心、体育场馆、石化工厂、地下铁道、车站机场、海上钻台等场所,特别是安装空间有限、须靠近负荷中心和具有特殊防火要求的场合,更能充分发挥其体积小、阻燃的优越性。
◆产品特点
1、阻燃、防爆、无污染、免维修、可分散安装在负荷中心,降低投资造价,节约费用。
2、损耗低,节电效果好,带来了运行上的经济实惠。
3、局部放电量小,线圈不吸潮,不吸尘,可靠性好,使用寿命长。
4、绕组真空浇注,机械强度高,抗短路能力强,雷电冲击性能好。
5、外壳采用不锈钢、铝合金和镀锌钢板等材料,外壳防护等级有IP20、IP23和IP40等型式,进出线可以上进上出,下进上出,下进下出。
6、可根据客户需要带有风机和温度控制系统,也可增加电磁锁,行程开关,安装支架等配件。
备注:根据客户需求,可以提供SCB18型一级能效,SCB14型二级能效及其他型号产品。

外形尺寸

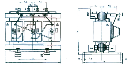
本体外形尺寸
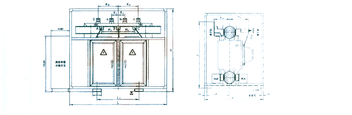
图(一)(低压出线端子)

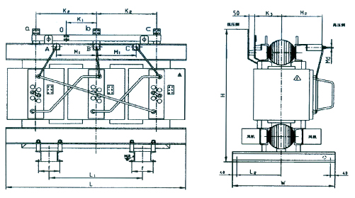
图(二)(本体外形尺寸)

图(三)(本体外形尺寸)

注:强迫风冷系列(风机)尺寸不超过本体尺寸(L*W)
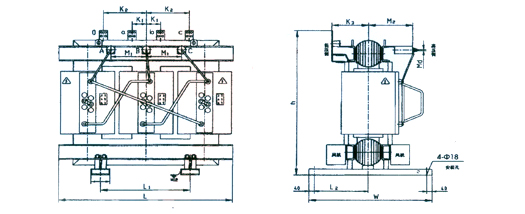
图(四)(进出线方式示意)

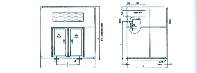
图(五)(外壳外形尺寸)

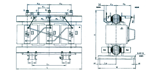
图(六)(外壳外形尺寸)

表四 SC(B)10系列 10kv 级30~2500kVA有载调压树脂绝缘于式变压器产品数据

注:(1)本手册提供的外形尺寸数据仅供设计选型用,其终尺寸以产品的实际外形为准。
(2)高低出线端子尺寸,与同容量无载调压干变的相同,具体尺寸参见图(一)。
图七(低压钢排出线示意图)

图八(外形尺寸)

图九(外形尺寸)

公 司:南通盛洋电气有限公司
联系人:吕经理
电话:0513-88799988 88799986
手机:13511570968
E-mail:ntsydq@163.com
地 址:江苏海安双楼工业区双工路9号